Contact us today on 01474 369368
Return to results Request A Viewing

Canal Road, Higham, Rochester

£2,200 Per Calendar Month

To Let

Property Features
  • Warehouse Unit With Office Space And Mezzanine
  • Measuring A Total 2488SqFt
  • Roller Shutter
  • 24/7 Access
  • CCTV and ANPR Camera
  • 2.4 Miles From Higham
  • 4.4 Miles From A2
  • Monthly Rolling Agreements Available
Property Summary
Warehouse Unit With Office Space And Mezzanine, Measuring A Total 2488SqFt, Roller Shutter, 24/7 Access, CCTV and ANPR Camera, 2.4 Miles From Higham, 4.4 Miles From A2, B8 Storage And Distribution, Monthly Rolling Agreements Available.
Property Features
  • Warehouse Unit With Office Space And Mezzanine
  • Measuring A Total 2488SqFt
  • Roller Shutter
  • 24/7 Access
  • CCTV and ANPR Camera
  • 2.4 Miles From Higham
  • 4.4 Miles From A2
  • Monthly Rolling Agreements Available


RENT
£2,200 PER CALENDAR MONTH (£26,400 PER ANNUM) PLUS VAT
Business rates are included within the rent.

LOCATION DESCRIPTION
Canal Road, Higham lies 2.4 miles north-west of lower Higham with its train link to London. The A289, Wainscott Bypass is 4.3 miles to the east, whilst the A2/M25 is located 4.4 miles to the South, linking to the M25 and Dartford River Crossing.

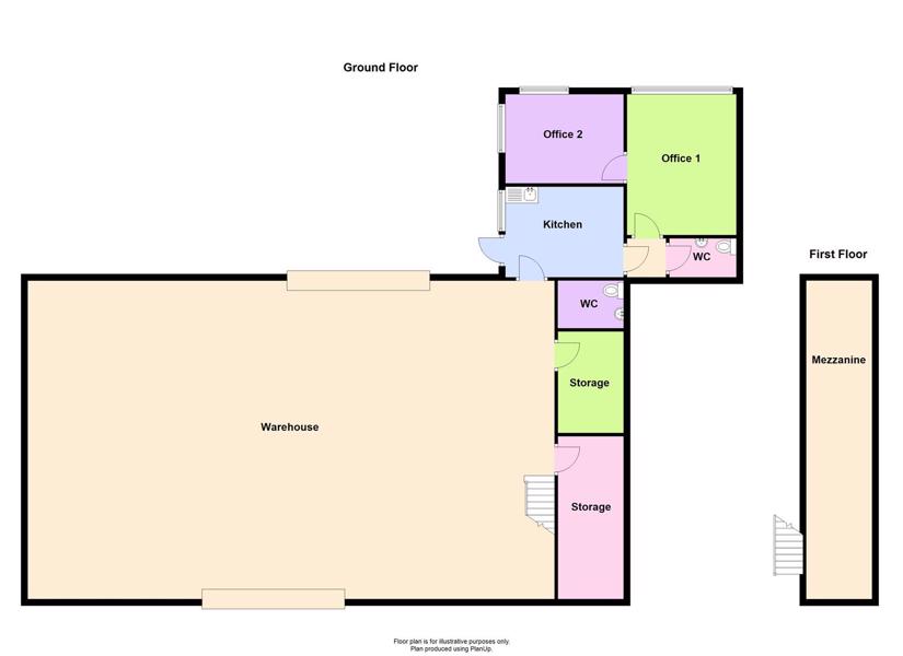
PROPERTY DESCRIPTION
A Warehouse unit: 1674 SqFt
Storage room 1: 107 SqFt
Storage room 2: 66 SqFt
WC: 35 SqFt
Kitchen: 107 SqFt
Office 1: 168 SqFt
Office 2: 107 SqFt

CURRENT CLASS OF BUSINESS USE
Interested parties are advised to seek clarification of permitted use from the local authority.

AGENT'S NOTE
Monthly rolling lease available.
Ingoing tenant to pay £150 referencing fee.
Access to the site is via a roadway pass below a railway bridge of 4.1m height clearance.


Whilst every care has been taken to prepare these marketing particulars, they are for guidance purposes only. These details, description and measurements do not form part of a contract and whilst every effort has been made to ensure accuracy this cannot be guaranteed. Interested parties must satisfy themselves by inspection or otherwise as to the correctness of them. Floor plans are not to scale and are for illustration purposes only. Any equipment, fixtures and fittings or any item referred to have not been tested unless specifically stated.
Google Rating
4.5